您當前的位置:
來源:梵客家裝 關鍵詞:梵客家裝 Loft戶型 室內設計 室內裝修 9204 2022-07-13
業主是一對剛結婚的小夫妻,慕名而來找到梵客家裝,并由非常擅長房型改造和Loft設計的陳海儉老師接待。
原房型為1室2廳1廚1衛,是一套開放式公寓,層高4.4米。風格上夫妻二人偏向現代簡約,可以有一些清新原木色。木色擁有自然的紋理,摸上去也很有質感,色調溫潤,令人感到舒適。
平日,這套房只有夫妻二人居住,家里老人偶爾過來,未來也會要小孩。對新家的要求是:有主臥、次臥、兒童房三個獨立空間。
建筑面積:120平(樓下70平,樓上50平)
房屋類型:Loft結構
房屋戶型:3室2廳1廚2衛
裝修風格:現代簡約,原木
居住人口:三口之家
業主要求:有各自獨立空間
為了空間能最大化利用,家中每個成員有各自的獨立空間并使用方便,設計師將空間格局進行了調整。
房型改動
普通開間 → Loft結構
1室2廳1廚1衛 → 3室2廳1廚2衛
層高4.4米普通開間,利用率并不高。改為Loft結構,等于多搭建一層挑空層,變成上下兩層,充分利用了縱向空間,戶型也在原來基礎上增加了2室1衛,拓展了功能區。
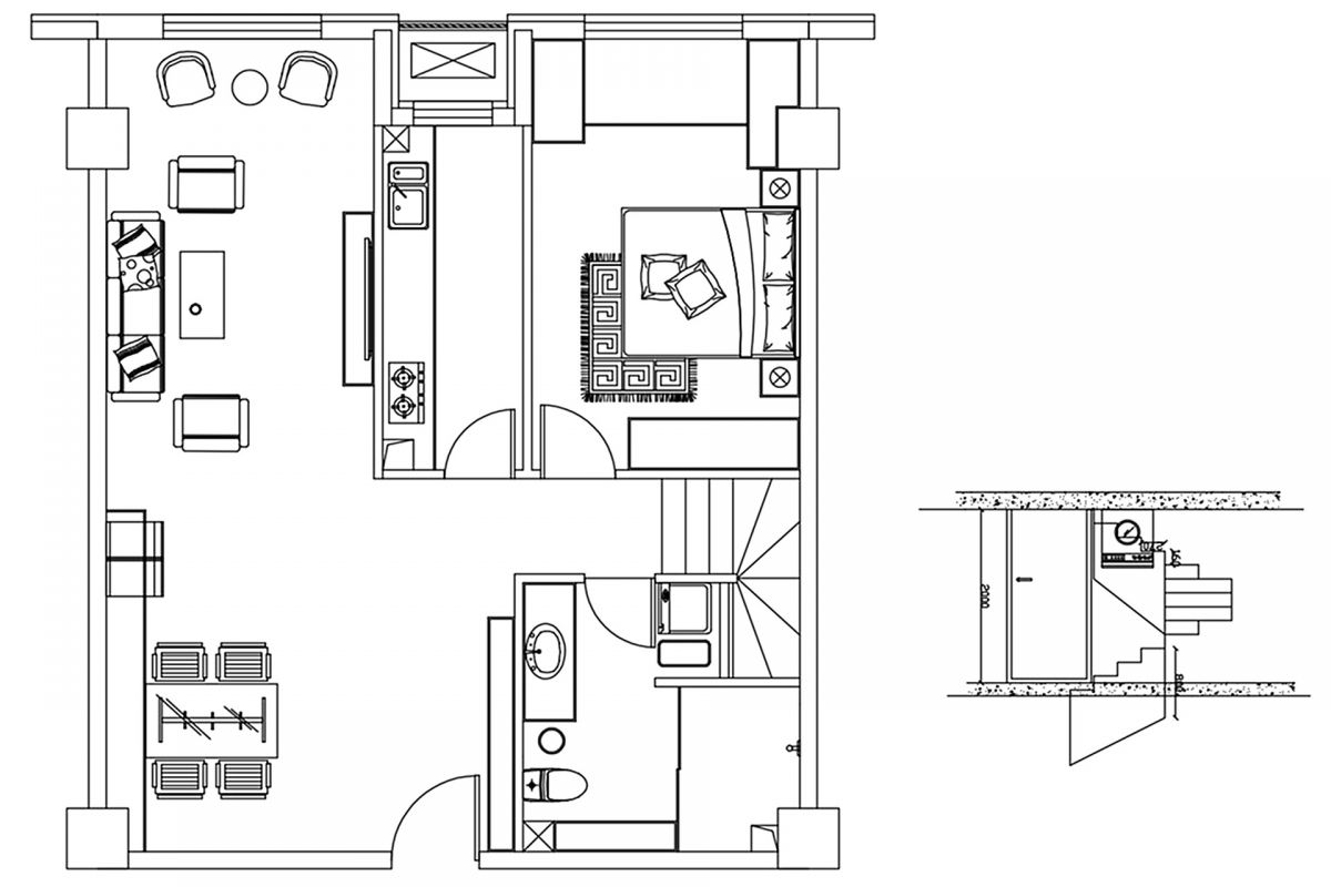
改造后,1層的功能區有:客廳、餐廳、廚房、次臥/老人房、次衛

△ 1樓平面布置圖
客廳位于1層,部分層高保持不變,有4.4米高,并且有落地窗,整個空間顯得非常明亮、透氣。
客廳的裝飾重點是背景墻,燈飾。
背景墻:電視背景墻和沙發背景墻都有足夠高的空間,選一面重點打造即可,講究主次。如果兩面都過于繁復,顯得壓抑。
設計師選擇重點打造沙發背景墻,因為沙發背景墻在身后,不會因長時間面對而引起視覺疲勞。高級灰的背景墻洋氣、現代感強,很適合老中青三代人的家,也不會因為常年灰塵累積帶來臟舊感。用鏤空收納箱做點綴,既起到整理物件的作用,還裝飾了空間。
燈飾:客廳空間很高,主燈在風格上要和整體格調吻合,高度要和4.4米空間協調。
主光源可選擇大型吊燈,后現代風格,藝術氛圍濃郁,裝飾感強。次光源為數個小吊燈,即可照亮空間,也可裝飾沙發背景墻。多個吊燈可根據需求開關,增加了生活趣味性。

餐廳和客廳位于同一平層,更改房型時,餐廳上方搭建了2層。所以餐廳層高有限,設計的亮點是收納柜。
整堵墻“頂天立地”風格的收納柜,可以儲放更多物品。嵌入式冰箱的設計,起到化零為整的作用。開放格和封閉柜相互交錯,增加了設計感。
餐邊柜設計比較復雜,餐桌就選了極簡風格,一重一輕搭配更和諧。吊燈與筒燈的共同使用,也滿足了多樣化照明。

廚房面積不大,采用一字型:水槽、操作臺、灶臺一字排開,簡潔精煉,適合中小戶型狹長型廚房。
風格及色彩和整個大空間和諧:現代簡約、木色家具。米白色帶紋路的墻磚、地磚,搭配木色櫥柜,提升了小空間的明亮度。

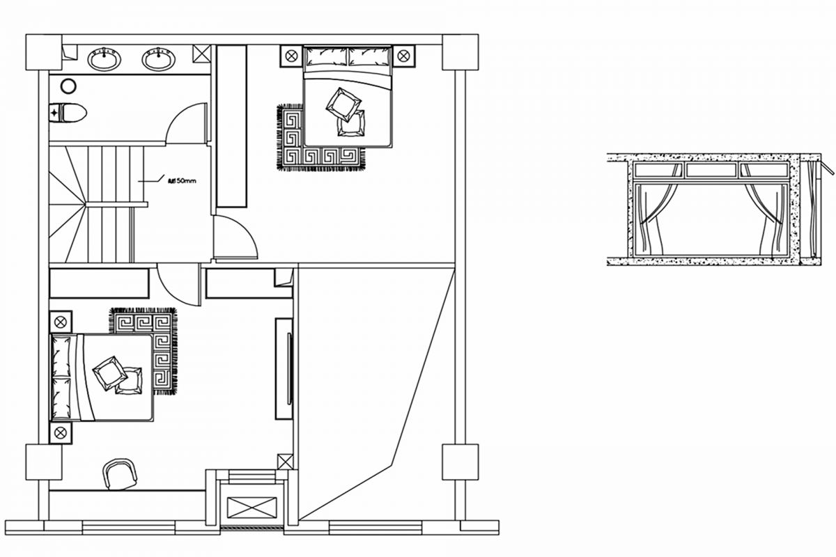
改造后,2層的功能區有:主臥,兒童房/書房,主衛
多了2樓空間約50平米,增加了1個主臥、1個兒童房/書房、1個主衛。這里不僅安靜舒適,私密性也好。
復式結構,要注意——
復式結構的層高不能太低,否則空間利用率和居住舒適度會降低。
用來分隔1樓和2樓的樓板是保證復式樓居住安全的重要環節。
樓梯設計不能為了節省空間而刻意縮減,樓梯的凈寬度不能小于0.9米,而且室內樓梯不能太陡。

△ 2樓平面布置圖
由1樓至2樓的護欄,用了玻璃和木護欄,增強了視覺通透性,也解決了采光的問題。

清新淡雅的風格,打造了一個輕松舒適的就寢空間。
主臥的設計重點是光源,燈光不能太刺眼,還可根據居住者的需求增減光源。有的人不喜歡主光源,覺得太亮,可以用數個筒燈代替。床頭柜、休憩區,都可以布置光源,方便起夜。

主衛的裝修和身體舒適度息息相關,好的馬桶、淋浴、浴缸等,都能提升生活的品質感。6平米的面積,有三處亮點:鏡柜,懸空洗手臺,燈源
鏡柜:表面看,是一面鏡子,打開柜門,則是一個碩大的收納柜,可以放洗漱及日用品。
懸空洗手臺:時尚感更強,可以提升空間格調。而且洗手間經常處于潮濕狀態,柜體懸空不易滋生霉菌。
燈源:筒燈照顧到大空間的照明,色調溫潤不刺眼;柜內燈帶,方便拿取物品的照明,還是一道小景觀。

現代簡約+原木風格,經典、百搭,不過時。追求的是空間的靈活性和實用性,通過強調原色之間的對比協調,體現永恒的藝術主題。家具重視功能性,注重結構本身的形式美,造型簡潔,反對多余裝飾,尊重材料的性能,講究材料的質地和色彩的配置效果 。如果你也喜歡這套案例,就快快預約設計師吧~

-end-
聲明:本文由梵客家裝提供,轉載請聲明出處!
讓家一大再大的體驗
已有 86 位業主獲得服務
新用戶專享優惠